丨别墅-01丨

项目概况
项目位置丨北京平谷
图纸编号丨001836
建筑尺寸丨面宽18.5m,进深22.8m
建筑面积丨506.00㎡
占地面积丨249.00㎡
土建价格 | 土建86万
建筑高度丨7m
结构形式丨砖混结构

△一层平面图

△二层平面图
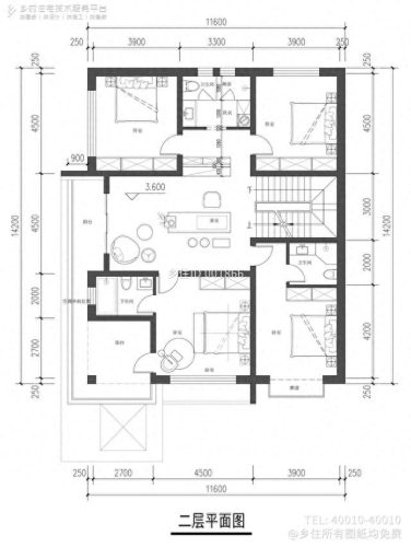
丨别墅-02丨

项目概况
项目位置丨北京平谷
图纸编号丨001866
建筑尺寸丨面宽11.6m,进深14.2m
建筑面积丨541.00㎡
占地面积丨164.00㎡
土建价格 | 土建92万
建筑高度丨11m
结构形式丨砖混结构

△负一层平面图

△一层平面图

△二层平面图

△三层平面图
丨别墅-03丨

项目概况
项目位置丨北京平谷
图纸编号丨001768
建筑尺寸丨面宽12m,进深13.7m
建筑面积丨260.00㎡
占地面积丨120.00㎡
土建价格 | 土建50万
建筑高度丨7m
结构形式丨砖混结构

△一层平面图

△二层平面图
丨别墅-04丨

项目概况
项目位置丨北京平谷
图纸编号丨001861
建筑尺寸丨面宽13.9m,进深32.9m
建筑面积丨383.00㎡
占地面积丨453.00㎡
土建价格 | 土建65万
建筑高度丨8m
结构形式丨砖混结构

△一层平面图

丨别墅-05丨

项目概况
项目位置丨北京平谷
图纸编号丨001872
建筑尺寸丨面宽12.8m,进深11.9m
建筑面积丨258.00㎡
占地面积丨152.00㎡
土建价格 | 土建45万
建筑高度丨10m
结构形式丨转混结构

△一层平面图

△二层平面图
丨别墅-06丨

项目概况
项目位置丨北京平谷
图纸编号丨000793
建筑尺寸丨面宽16.7m,进深10.7m
建筑面积丨381.00㎡
占地面积丨170.00㎡
土建价格 | 土建75万
建筑高度丨8m
结构形式丨砖混结构

△一层平面图

△二层平面图
丨别墅-07丨

项目概况
项目位置丨北京平谷
图纸编号丨001812
建筑尺寸丨面宽14.3m,进深12.5m
建筑面积丨187.00㎡
占地面积丨187.00㎡
土建价格 | 土建37万
建筑高度丨4m
结构形式丨砖混结构

△一层平面图
丨别墅-08丨

项目概况
项目位置丨北京平谷
图纸编号丨000114
建筑尺寸丨面宽29m,进深16m
建筑面积丨552.00㎡
占地面积丨370.00㎡
土建价格 | 土建121万
建筑高度丨9m
结构形式丨砖混结构

△一层平面图

△二层平面图
丨别墅-09丨

项目概况
项目位置丨北京平谷
图纸编号丨000201
建筑尺寸丨面宽16.6m,进深15.5m
建筑面积丨260.00㎡
占地面积丨96.00㎡
土建价格 | 土建43万
建筑高度丨7m
结构形式丨砖混结构

△一层平面图

△二层平面图
丨别墅-10丨

项目概况
项目位置丨北京平谷
图纸编号丨001675
建筑尺寸丨面宽24.9m,进深24m
建筑面积丨369.00㎡
占地面积丨570.00㎡
土建价格 | 土建66万
建筑高度丨5m
结构形式丨砖混结构

△一层平面图
丨别墅-11丨

项目概况
项目位置丨北京平谷
图纸编号丨000536
建筑尺寸丨面宽11.3m,进深16.1m
建筑面积丨258.00㎡
占地面积丨139.00㎡
土建价格 | 土建46万
建筑高度丨8m
结构形式丨砖混结构

△一层平面图

△二层平面图
丨别墅-12丨

项目概况
项目位置丨北京平谷
图纸编号丨000713
建筑尺寸丨面宽14.3m,进深17.5m
建筑面积丨350.00㎡
占地面积丨195.00㎡
土建价格 | 土建68万
建筑高度丨9m
结构形式丨砖混结构

△一层平面图

△二层平面图
丨别墅-13丨

项目概况
项目位置丨北京平谷
图纸编号丨001293
建筑尺寸丨面宽14.1m,进深16m
建筑面积丨365.00㎡
占地面积丨165.00㎡
土建价格 | 土建69万
建筑高度丨8m
结构形式丨框架结构

△一层平面图

△二层平面图
丨别墅-14丨

项目概况
项目位置丨北京平谷
图纸编号丨000028
建筑尺寸丨面宽14.1m,进深8.7m
建筑面积丨234.00㎡
占地面积丨130.00㎡
土建价格 | 土建53万
建筑高度丨7m
结构形式丨砖混结构

△一层平面图

△二层平面图
丨别墅-15丨

项目概况
项目位置丨北京平谷
图纸编号丨001517
建筑尺寸丨面宽15.3m,进深9.1m
建筑面积丨267.00㎡
占地面积丨140.00㎡
土建价格 | 土建48万
建筑高度丨7m
结构形式丨砖混结构

△一层平面图

△二层平面图